【貸ビル】京橋ト一ビル
賃貸基本情報
- 賃料: 330万円
- 管理費・共益費: -
- 敷金・保証金: 12ヶ月/なし
- 礼金: なし
- 交通: 京阪本線 / 京橋駅 徒歩2分
- 所在地: 大阪府大阪市都島区片町2丁目
- 築年月: 1979年3月(築46年9ヶ月)
- 使用面積(専有面積): 1,244.39㎡
- 坪数: 376.42坪
- 坪単価: 0.8767万円
賃貸詳細情報
- 交通: 京阪本線 / 京橋駅 徒歩2分
- その他交通: JR大阪環状線 / 京橋駅 徒歩3分 ,JR片町線 / 京橋駅 徒歩3分
- 所在地: 大阪府大阪市都島区片町2丁目
- 物件種目: 貸ビル
- 賃料: 330万円
- 管理費等: -
- 敷金・保証金: 12ヶ月/なし
- 礼金: なし
- 敷引: -
- 保証金償却: -
- その他一時金: -
- 維持費等: -
- 保険等: 加入要
- 権利金: -
- 坪単価: 0.8767万円
- 建物名_部屋番号: 京橋ト一ビル
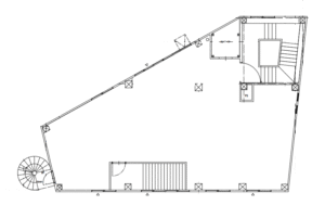
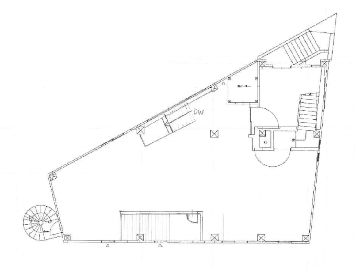
- 特記事項: スケルトン 飲食店可
- 設備: エレベーター
- 使用部分面積: 1,244.39㎡
- 坪数: 376.42坪
- 土地面積: 公簿 223.39㎡
- 築年月: 1979年3月(築46年9ヶ月)
- 建物構造: 鉄骨造
- 駐車場: -
- バイク置き場: -
- 駐輪場: -
- 接道状況: 角地:2方道路 南 公道 北 公道
- 用途地域: 商業地域
- 間取り: -
- 契約期間: 10年
- 現況: 空
- 条件等: -
- 引渡可能時期: 即時
- 更新料: -
- 物件番号: 6983690152
- 管理番号: -
- 情報公開日: 2025/09/26
- 次回更新予定日: 2025/12/05
Powered by Estatik

